24/6 Ellison Harvie Close Greenway ACT
Perfect First Home or Investment Property
Currently leased at $620PW, on a fixed term agreement till August 2026.
Photos are digitally staged.
Features:
+ Electric fireplace heater
+ Feature lighting to kitchen
+ Recessed TV area in living
+ 2.7m ceilings on main floor
+ NBN FTTP
+ Double glazed windows and doors throughout
+ Reverse cycle AC to living
+ Master bedroom with ceiling fan and Juliette balcony
+ Heated down lights to bathrooms
+ Bathrooms full height tiling
+ Wall hung bathroom vanity
+ Wantons Block out blinds
+ German made Bosch appliances
+ Oven
+ Dishwasher
+ Externally ducted range hood
+ Dryer
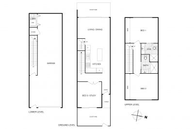
+ Secure two car tandem garage
Stunning townhouse located in the heart of Tuggeranong. Well looked after and updated with a couple of final touches to make this home truly special. Features include a new electric fireplace heater, feature pendant lighting in the kitchen and painting touch ups throughout. As you enter through the front door you will be impressed by the ceiling heights of 2.7 meters and a master chef kitchen with high quality German made’ appliances and externally ducted range hood.
Upstairs features two segregated bedrooms, the main bedroom includes full height sliding doors (Juliet balcony), ceiling fan and ensuite with floor to ceiling tiling. Externally, provides dual terraces soaking in the North Westerly sun.
Impressive energy-efficiency rating of 6 stars which is the maximum rating for established properties. When required, the apartment has reverse cycle air conditioning to the living room to keep you comfortable.
Location:
+ Lake Tuggeranong walk and cycleway at your front door
+ 800m walk to 2 before 10 coffee shop on Limberg Way
+ 1km to Tuggeranong’s Government Employment hub on Athllon Drive
+ 1km to Southpoint Tuggeranong major shopping centre
+ 1km to Tuggeranong major bus interchange
+ 15-minute (17km) off-peak drive to Canberra’s Parliamentary Zone
+ 17-minute (20km) off-peak drive to Canberra City Centre
Statistics: (approximate figures below)
Internal: 83m²
Balcony/ external: 17m²
Garage: 44m²
Rental appraisal: $620 per week
Body corporate: $841 per quarter
Land rates: $588 per quarter
Land tax: $590 per quarter
Build completion date: 2020
44 Townhouses/ apartments in the development
Offers Over $580,000
Property Type
Townhouse
