44 Stieglitz Circuit, Kambah
Bright, Comfortable & Conveniently Located
The Features You Want To Know!
+ Renovated kitchen with high quality appliances
+ Freshly painted throughout
+ Spacious 831m² battle axe block
+ 1 Garage (converted to extra storage) & 2 carports
+ Ceiling fans to bedrooms
+ Close proximity to nature reserves and walking trails
+ Large bathroom with separate toilet
+ Easy access to main roads, be in the City in around 20 minutes
Why You Want to Live Here!
Set on a generous block in the heart of Kambah, with the Southpoint shopping precinct located within a 5 minute drive this home has everything you need. Combining comfortable living with recent updates that make it ready to move straight into. The interior has been freshly painted, bringing a bright, clean feel to every room, the kitchen is renovated with high quality Bosch appliances. The home is flooded with natural light and is perfectly situated on a large, private block of land surrounded by established trees.
This property offers the perfect mix of comfort and potential. The home is refreshed inside, with a complete internal paint and an updated kitchen/ bathroom while still leaving room to add your own updates over time. Whether you're a first home buyer, investor, or family, this home delivers space, practicality, and opportunity in one of Tuggeranong's most connected suburbs.
Words from the owner "We really love the generous shower, the converted garage that makes for a great gym / dance studio, and the super convenient location."
The Stats You Need to Know!
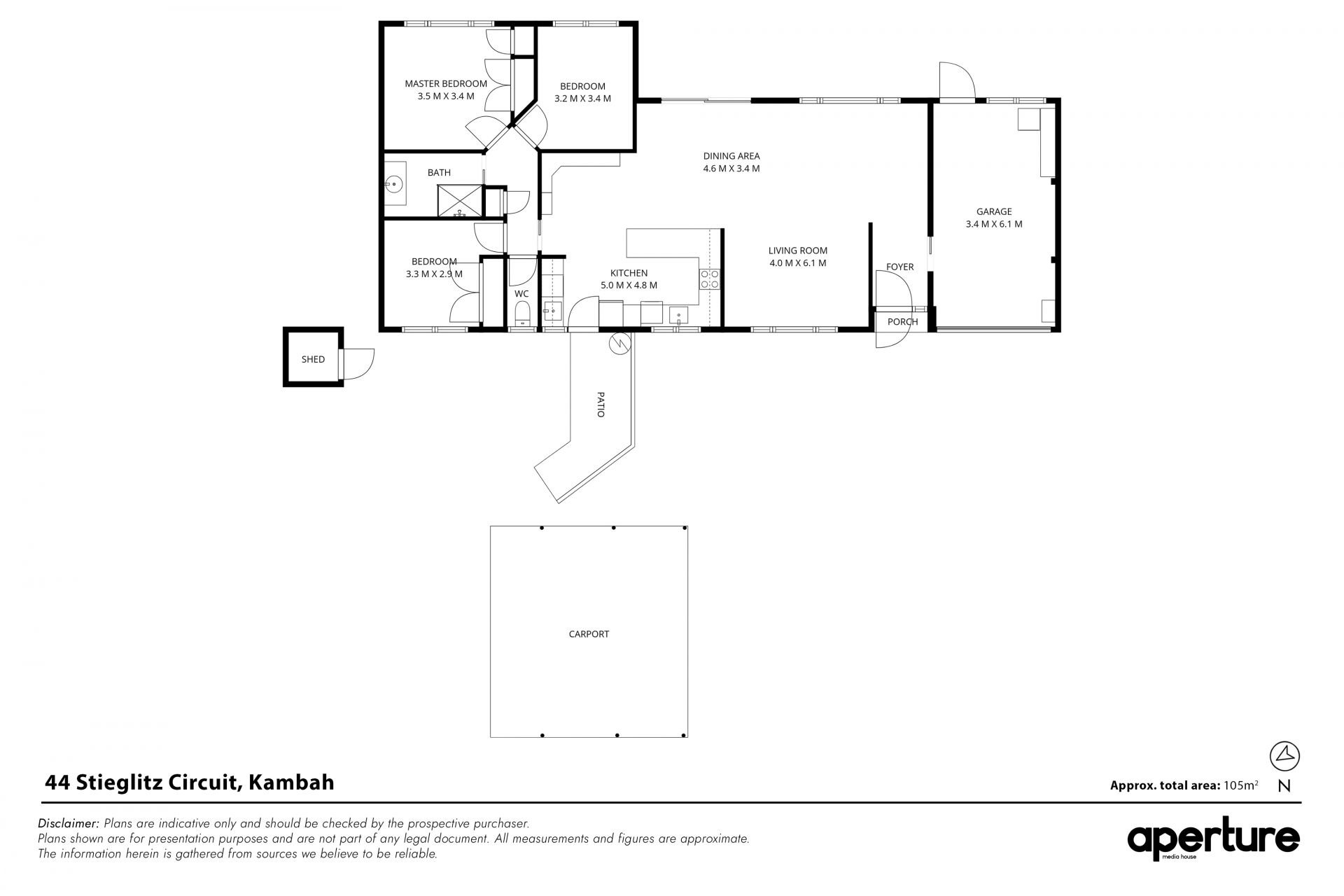
Internal: 114m²
Garage: 23m²
Block: 831m²
Body Corporate: $1,469 per annum (includes water consumption & building insurance)
Rates: $779 per quarter
Land tax: $TBA per annum (only paid if investment property/ tenanted)
Heating and cooling: Reverse cycle AC to living and one of the bedrooms
Rental Appraisal: $650 - $670 per week
EER: 1.5 star
Built: 1985
Kitchen renovated: 2017/2018
+ Renovated kitchen with high quality appliances
+ Freshly painted throughout
+ Spacious 831m² battle axe block
+ 1 Garage (converted to extra storage) & 2 carports
+ Ceiling fans to bedrooms
+ Close proximity to nature reserves and walking trails
+ Large bathroom with separate toilet
+ Easy access to main roads, be in the City in around 20 minutes
Why You Want to Live Here!
Set on a generous block in the heart of Kambah, with the Southpoint shopping precinct located within a 5 minute drive this home has everything you need. Combining comfortable living with recent updates that make it ready to move straight into. The interior has been freshly painted, bringing a bright, clean feel to every room, the kitchen is renovated with high quality Bosch appliances. The home is flooded with natural light and is perfectly situated on a large, private block of land surrounded by established trees.
This property offers the perfect mix of comfort and potential. The home is refreshed inside, with a complete internal paint and an updated kitchen/ bathroom while still leaving room to add your own updates over time. Whether you're a first home buyer, investor, or family, this home delivers space, practicality, and opportunity in one of Tuggeranong's most connected suburbs.
Words from the owner "We really love the generous shower, the converted garage that makes for a great gym / dance studio, and the super convenient location."
The Stats You Need to Know!
Internal: 114m²
Garage: 23m²
Block: 831m²
Body Corporate: $1,469 per annum (includes water consumption & building insurance)
Rates: $779 per quarter
Land tax: $TBA per annum (only paid if investment property/ tenanted)
Heating and cooling: Reverse cycle AC to living and one of the bedrooms
Rental Appraisal: $650 - $670 per week
EER: 1.5 star
Built: 1985
Kitchen renovated: 2017/2018
overview
-
1P2359
-
House
-
Sold
-
44 Stieglitz Circuit Kambah ACT
-
3
-
1
-
3
-
2
-
1
-
1.5
